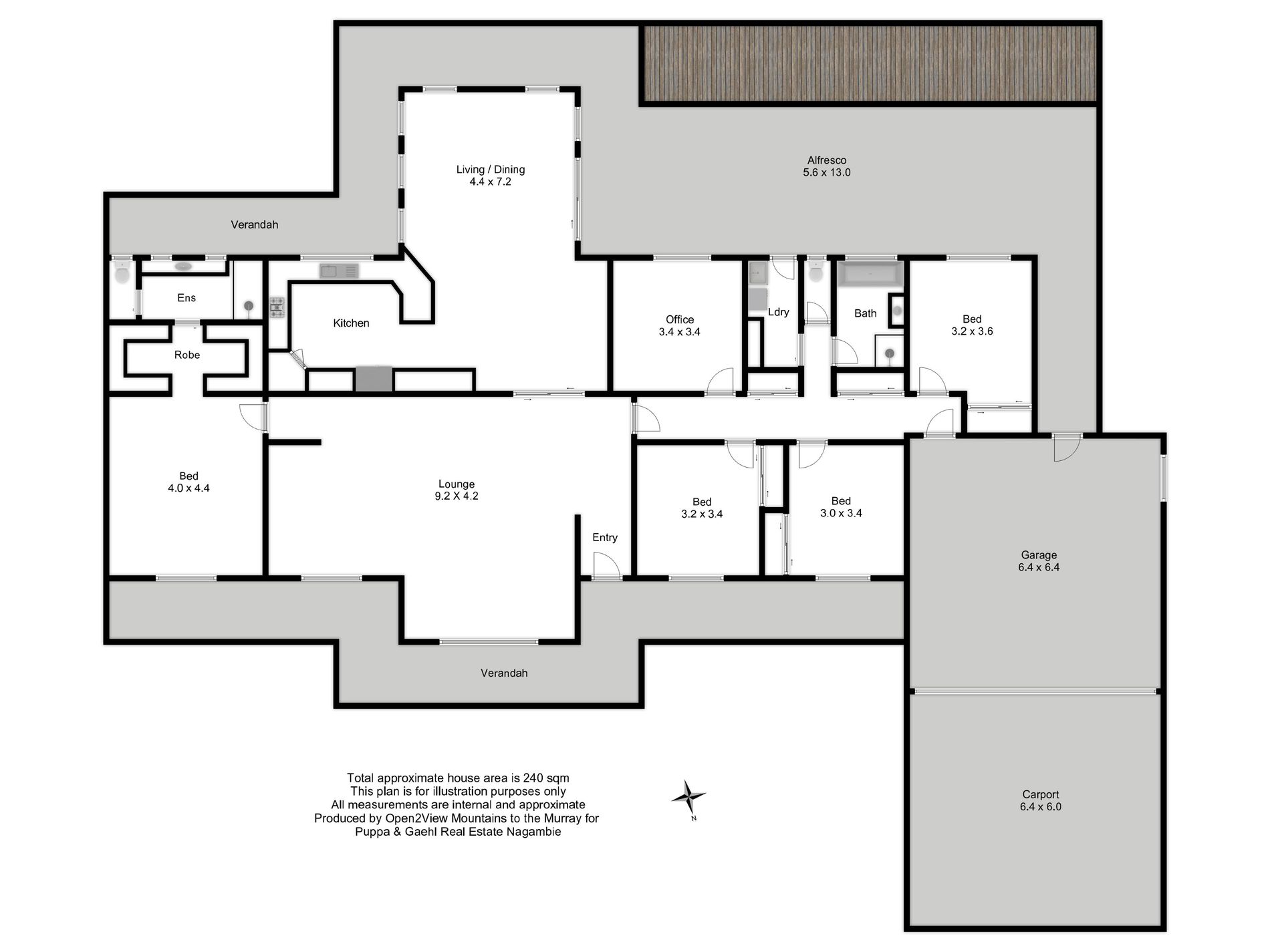
This imposing brick home is situated on just over 1 acre of land on the outskirts of Avenel in an impressive garden setting. Accommodation comprises four large bedrooms ( main with ensuite ) , all with ceiling fans and built-in robes and a separate office or 5th bedroom. The tiled kitchen /family room has been recently updated and is bright and airy.
Features include
- 2 R/C Air conditioners plus zoned electric floor heating.
- Quality floor coverings throughout
- Huge undercover BBQ area and entertaining terrace.
- 2 car garage with roller door access and additional undercover carport for two cars.
- Cost-saving solar panels fitted.
- GI garden shed with concrete floor .





