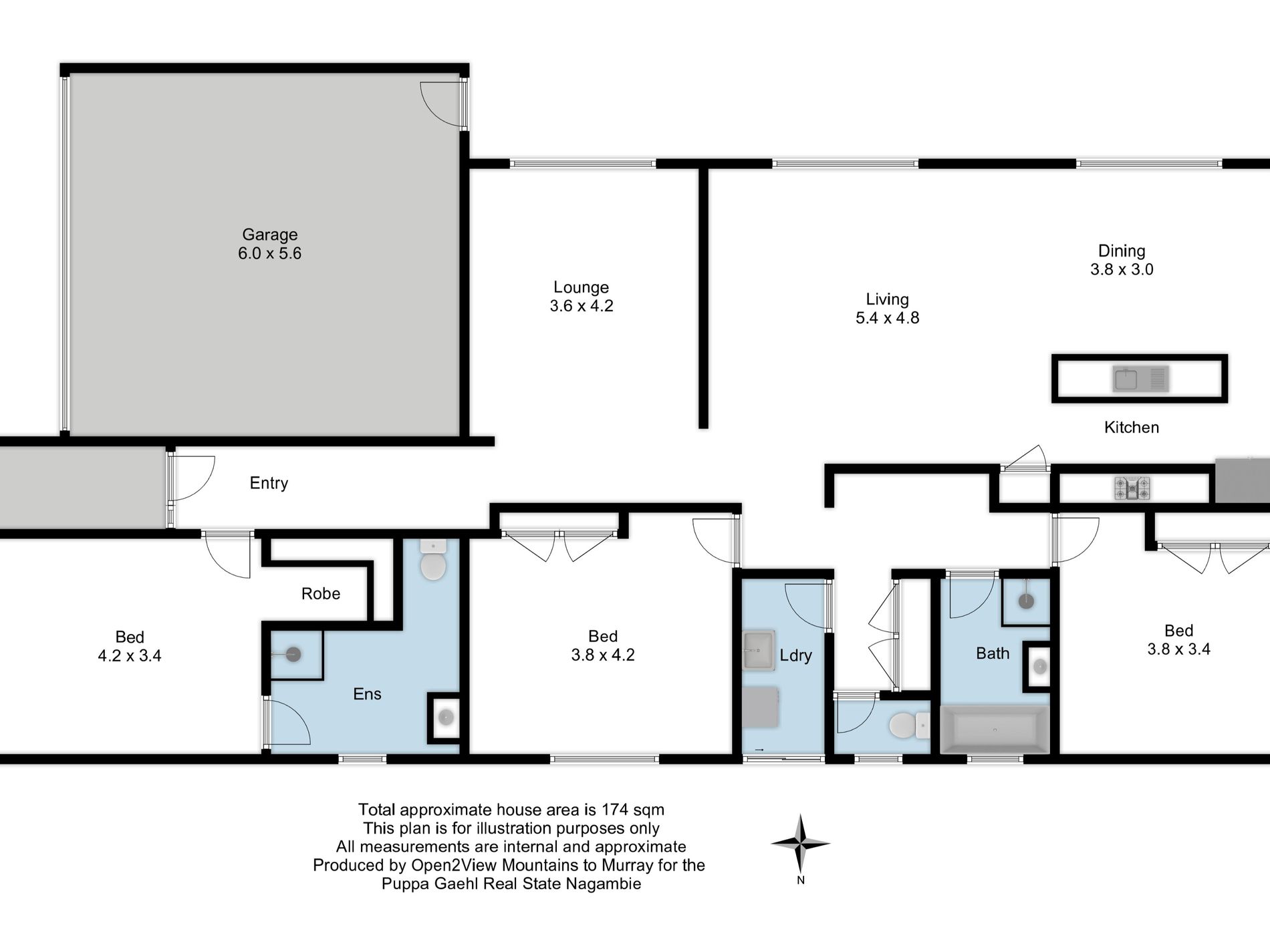
Set on a large 3599m2 (approx.) parcel of land that is a beautiful blank canvas for further landscaping, shedding etc (STCA).
With a 4yr old Simonds built home that is full of natural light, 3 good size bedrooms, 2 bathroom and 2 living areas.
In the quiet and family friendly Scarlett St this property will make an excellent family home with elevated rural hill views.
A lovely quiet court location, within walking distance to local sporting facilities, primary school and town center.
2 Car lock-up remote garage.





