64 Sayers Lane, Rushworth

$565,000

Acreage With Off Grid Home!!

This mudbrick off grid home set on approximately 50 acres offers the quiet rural lifestyle that so many are looking for.
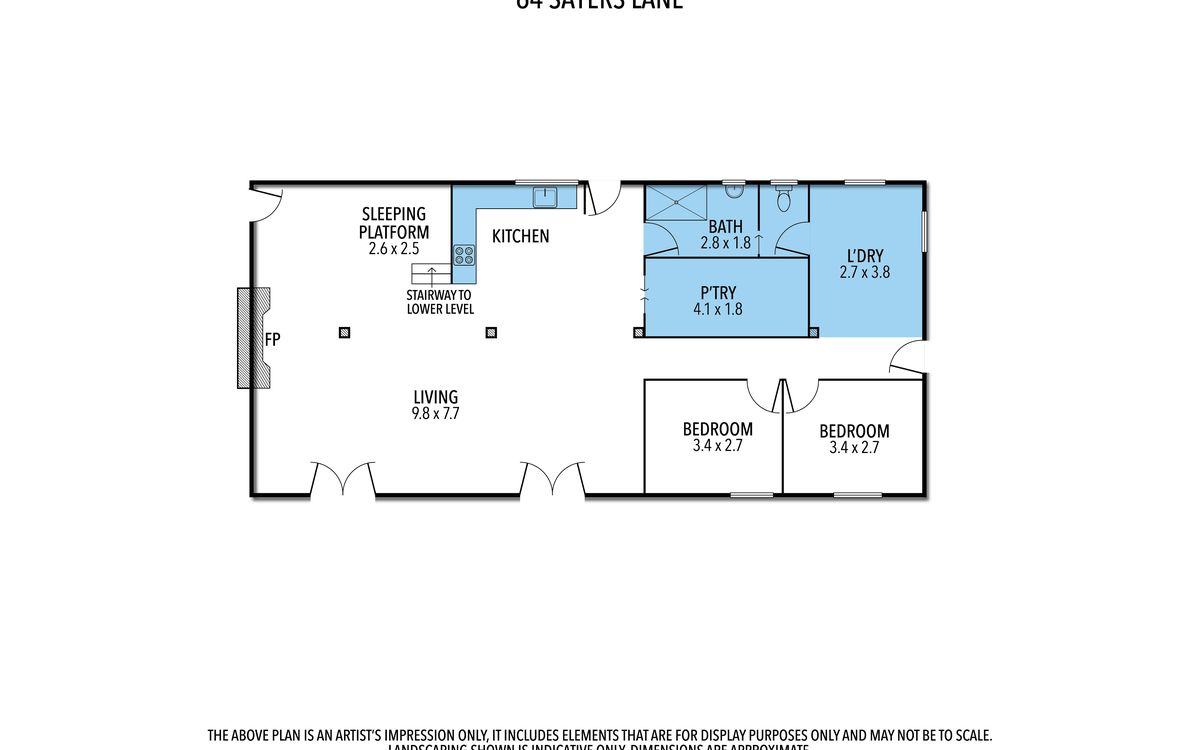
Home offers an open plan kitchen, dining and living space with exposed timber beams, slate and timber flooring, wood fire, ceiling fans and double doors opening to the rural outlook. With 2 bedrooms and an office space or extra bedroom. A central bathroom along with a separate laundry and toilet.
Outside offering 360 degrees rural views surrounded by trees and wildlife along with 3 dams, a large machinery shed or workshop, 2 water tanks that are gravity feed to the home for endless water supply.
This off grid home is powered by solar and has generator backup.
If you are looking for a quiet rural life that allows you to reduce your carbon footprint but still have all the comforts then this home is the one for you.


Heating & Cooling

  • Open Fireplace

Eco Friendly Features

  • Solar Panels
  • Water Tank

Listed by

agent

Bonnie Gaehl

0425 720 946

[email protected]


3   1     0  

  Download Brochure


  Statement Of Information

Enquiry


Name

Email

Phone

I would like to:






Message

What is ?




Location Map